
项目地点:中山市德商樾玺地产售楼中心
项目要求:投影幕能够跟自动电动门同步开关
XY银幕:进口4k双白软幕 +窄边1.2公分边框
德商樾玺作为成都德商进入大湾区首个项目,传承了德商在成都开发的豪宅基因,以新生代顶豪概念和优良企业品质打造的半山豪宅,从整体规划、立面设计、室内设计均邀请国际一线设计师操刀设计。

XY银幕与德商樾玺地产进行一次深度合作,在自动电动门加上XY投影幕,这是在投影幕的创新,XY银幕为了满足德商樾玺地产要求,XY银幕业务部、技术部和生产部,一起进行多次会议,分析客户要求,探讨可能会遇到的技术难题,具体解决方案,为了达到最好效果给到客户。
XY银幕技术部和生产部加班加点,从测量现场到安装完工只用了5天时间,如此短的时间能完成项目,XY银幕得到德商樾玺地产充分肯定!
点击播放
XY进口4k双白软幕:
双白软幕WF1 Pro 使用法国技术, 采用特种PVC 复合材料制造而成,投影幕表面具备细小纹路,可以使入射光向所有方向扩散,增大视野角;为了展示4K 影像WF1 Pro 具备更加细腻的表面纹路,高对比度特殊涂层,确保影像最佳效果,适合高级发烧友也适合专业人士观赏。
增益: 1.1 视角:160 度 分辨率:4K
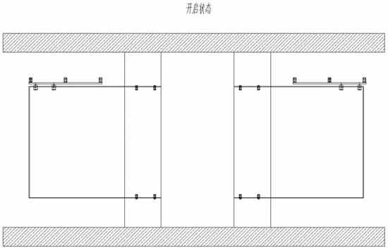
XY银幕滑轨幕工作原理:
结合无边画框幕和窄边画框幕的结构,整体屏幕分为两个,即左屏幕和右屏幕,左屏幕的上、左、下边都有外边框,右边没有外边框。右屏幕的上、右、下都有外边框,左边没有外边框。当左、右两个屏幕紧碰在一起的时候,投影面接合,只有一条极小的接合线,对正常观影基本没有影响。
将屏幕一端固定在推拉门上,另一端通过吊装码吊装在滑轨内。当推拉门向外开时,带动屏幕向外移动,屏幕的另一端通过吊装码在滑轨内向外滑动,从而使屏幕稳定可靠地与推拉门一起动作。
当推拉门使用电机驱动,推拉门左右开合和屏幕左、右镜像布置时,就使屏幕能与推拉门一起通过电路控制(或遥控/中控)实现左右开合。当需要观看投影时,将屏幕闭合,便可观看艳丽无缝图像。当需要在通过隔墙时,将电动推拉门开启,人便可在中间自由通过。既满足了观影要求,也方便了人员走动的需要。
设计效果图:


0

2019-07-30 
2019-07-30 
2019-07-30 
2019-07-30 
2019-07-10 
2019-07-30 
2019-07-30
2019-07-30 
2019-07-30 
2019-07-30 
2019-07-30 
2019-07-11 
2019-07-30 
2019-07-30 
2019-07-30 
2019-07-09 
2019-07-30 
2019-07-29 
2019-07-29 
2019-07-10